Single Family Residence | Utah

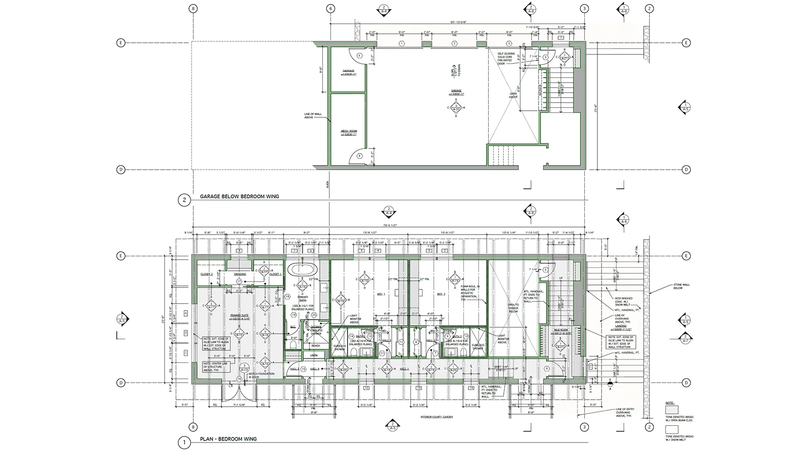
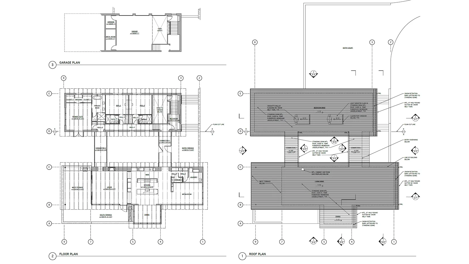
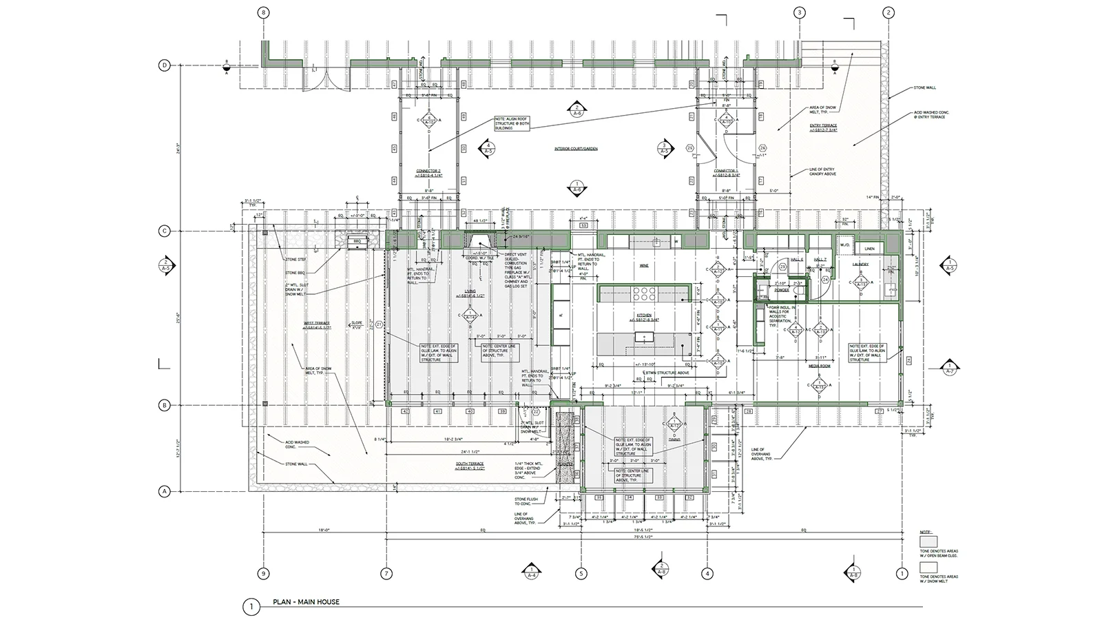
Set atop a hill, this luxury villa embraces sweeping 360-degree views of the surrounding landscape. The home is composed of two distinct wings, gently separated to balance privacy and togetherness. One wing offers a quiet retreat with serene bedroom spaces, while the other opens into a generous living area and kitchen designed for gathering and connection. Glass corridors link the two volumes, framing the garden at the heart of the home and allowing light, sky, and nature to flow through every space.

Crafted from a refined palette of wood and stone, the architecture feels both grounded and elevated, blending naturally into its dramatic setting. The project celebrates calm, clarity, and the beauty of living in dialogue with the land, and was completed at Nick Noyes Architecture.

Previous
Previous

San Francisco Residential

Next
Next

San Carlos Dealership