Residential Renovation and Addition | Brisbane, CA

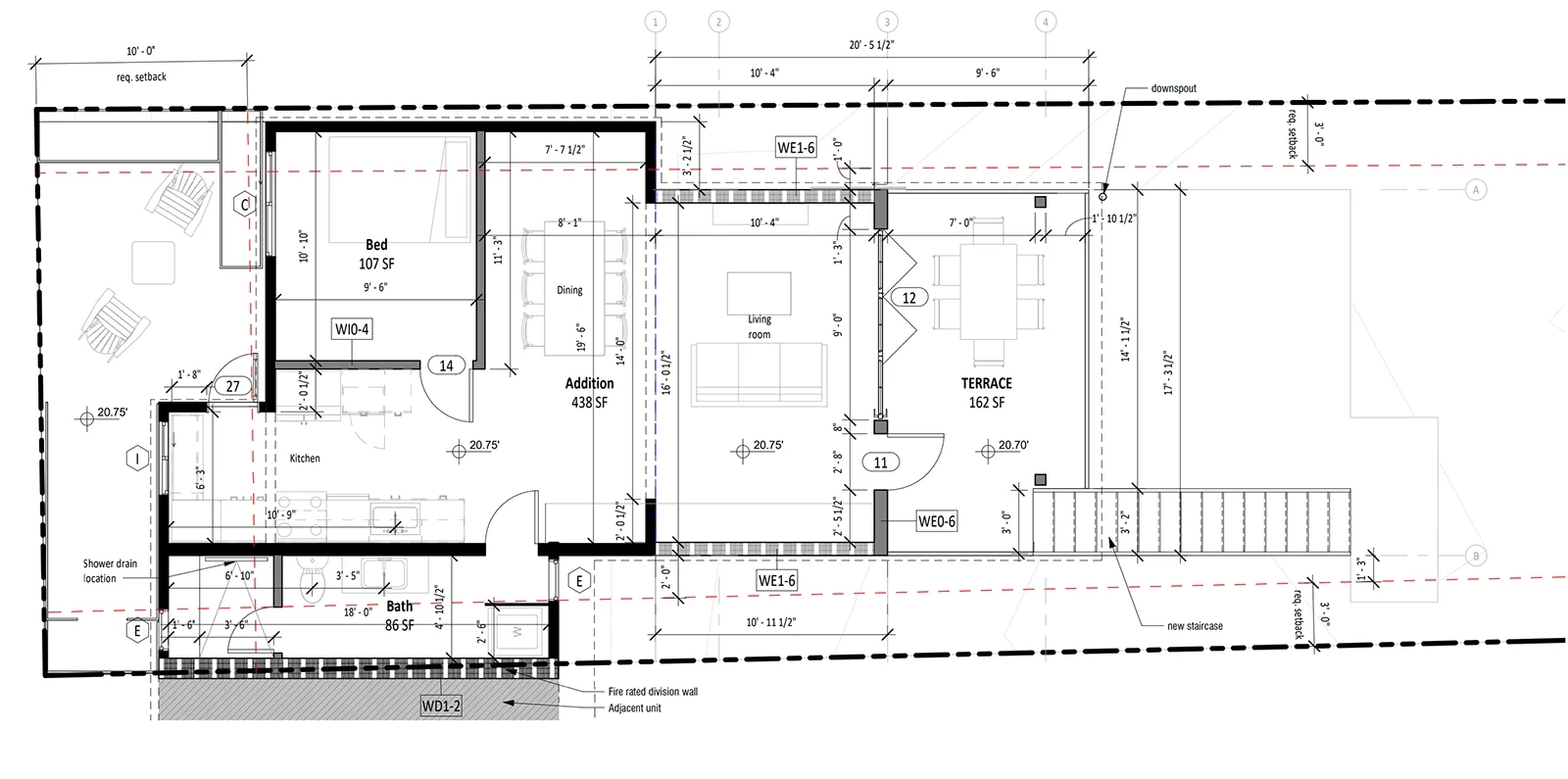
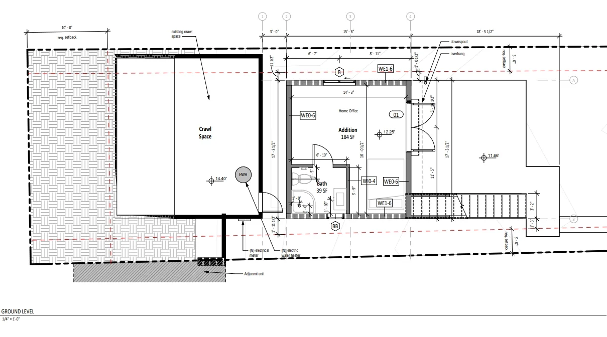
This project involved the renovation of an existing 480-square-foot single-family residence and the expansion of its footprint, along with the addition of a new upper level for a total of approximately 400 square feet of added area. Designed and built within a limited budget, the project focused on maximizing space, improving functionality, and creating a brighter, more livable home. Careful planning and efficient design strategies allowed the transformation of a compact structure into a comfortable and well-organized residence while maintaining cost-conscious solutions throughout the process.

Next
Next

Napa ADU